優っくりグループホーム中央湊

施設案内

所在地:〒104-0043
東京都中央区湊2-16-23 パークシティ中央湊ザレジデンス 1~4階
電話番号:03-6280-4668
FAX番号:03-6280-4674
メールアドレス chuominato-grouphome@foryou.or.jp
営業時間 営業日:年中無休営業時間:24時間問い合わせ窓口:9:00~18:00


優っくりグループホーム中央湊は隅田川沿いにある、パークシティ中央湊ザレジテンスの3F、4Fにある施設です。. リビングや居室からは隅田川の景色が一望でき、入居者様からも人気のある施設となっています。

日々の様子

居室

事業所入口

お風呂

フロア

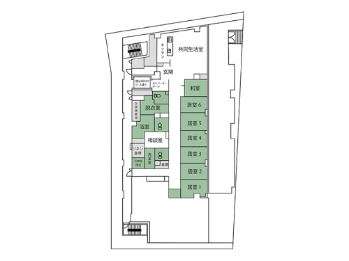
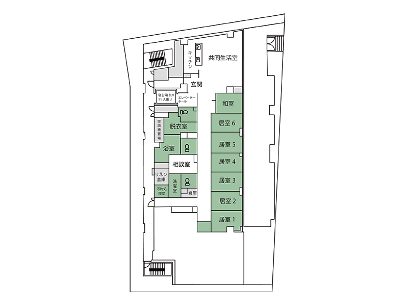
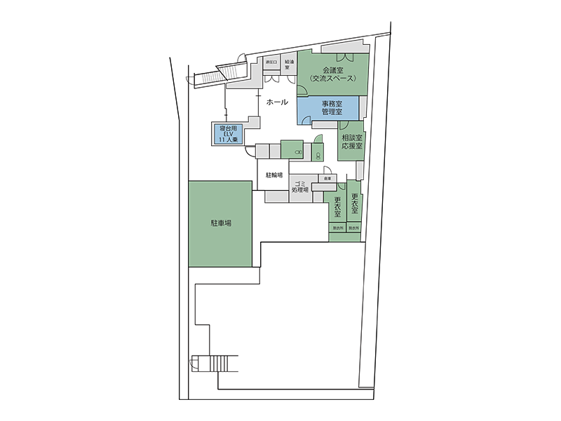
施設内案内図

1階平面図

2階平面図

3階平面図

4階平面図